築2年の店舗+住宅です!駐車場4台

事業用/店舗(事務所)付き住宅店舗(事務所)付き住宅/山鹿市中央通
賃料(月額)
188,000円
最寄り交通機関
「山鹿バスセンター」バス停徒歩約5分
所在地/物件名
山鹿市中央通1001-6
山鹿市 貸物件
山鹿市 貸物件
管理費・共益費等
5,000円/月
敷金/保証金/礼金
敷金 : 1ヶ月 保証金 :
礼金 : 2ヶ月
礼金 : 2ヶ月
専有面積(m2)
187.21m2
構造・階数/所属階数
木造合金メッキ鋼板葺平家建/1階部分
築年数
2023年10月
駐車場
4台(賃料に含む)
ペット飼育
入居可能予定日
即時
取引態様
仲介
設備
システムキッチン(食洗洗浄乾燥機付)、カップボード、浴室暖房乾燥機、ガス衣類乾燥機、給湯器
備考・コメント
山鹿小、山鹿中校区
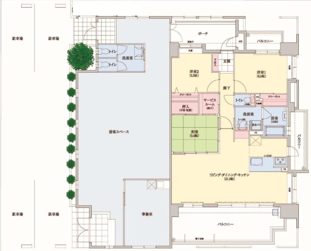
店舗(事務所):70.97㎡(約21.47坪)
住居(3SLDK):84.24㎡(約25.48坪) バルコニー:32㎡(約9.68坪)
※分譲マンションのモデルルーム、事務所跡です
現地図
※現地につきましては現況優先となります。詳細はお気軽にお問い合せください。

