オール電化、築7年の住宅です。3台駐車できます!

建物/売中古住宅中古住宅/嘉島町上六嘉
価格
3,000万円
最寄り交通機関
「丸池」バス停徒歩約4分
所在地
上益城郡嘉島町大字上六嘉248番9
土地面積
214.85m2 (64.99坪)
建物面積
84.5m2 (25.56坪)
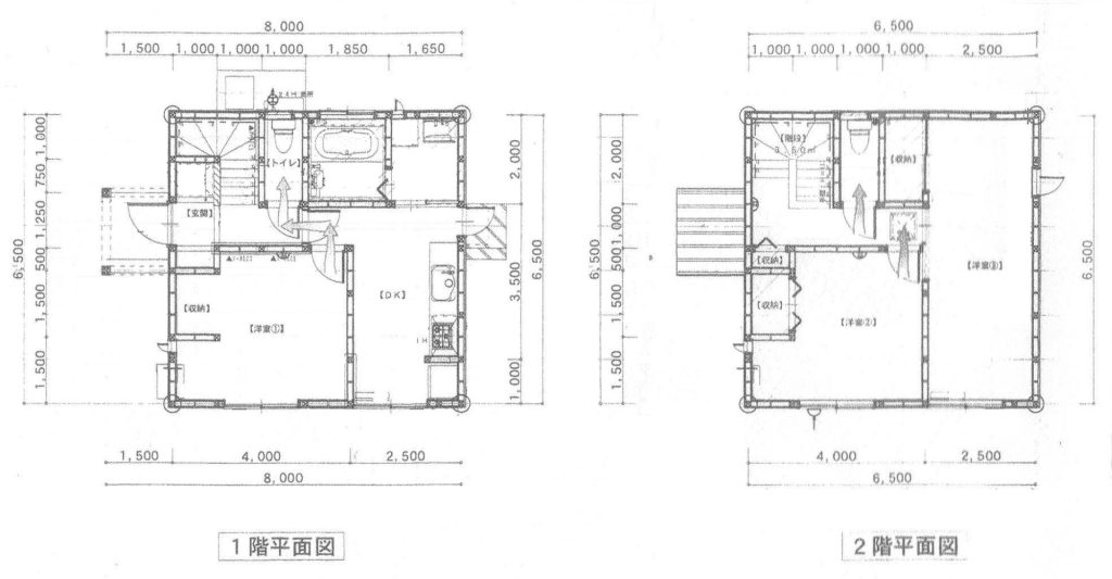
間取り
3DK
構造/階数
木造合金メッキ鋼板ぶき2
築年月
2018年11月
学校区
嘉島東小、嘉島中学校区
引き渡し
要相談
取引態様
仲介
備考・コメント
集落内開発制度区域内
現地図
※現地につきましては現況優先となります。詳細はお気軽にお問い合せください。



